一种汽车侧部铰链门洞密封面设计及优化介绍
【润科数控】1、背景
  
      目前,中国自主品牌汽车设计越来越注重车身品质以及感知质量细节设计; 其中,汽车的乘客舱门密封面是一个设计要点越是一个难点;它的功能使用频次、NVH 密封性、静态舒适感知度等要求高于前部发动机舱和尾部行李舱;乘客舱侧门门洞密封面是车型结构开发设计过程中的重要边界,是一打开车门就可见的二级表面,即上下车(乘客舱)使用和正常操作车门功能较容易可见的钣金区域,是客户关注度极高的区域;而且,侧围SHUT FACE 密封面的输出包含了门洞B&R line ,包含了主密封和二道密封尺寸约束关系,体现了大部分车门系统功能件布置所需的要求和周边关系; 设计过程中需要多次优化才能达到一个平衡点;因此,设计好汽车的侧门门洞密封面,对车主非常重要; 既要满足车门系统的功能、耐久、NVH、密封等又要让车主在上下车打开车门时赏心悦目,有一个好的感知品质;本文主要对汽车侧门门洞( 乘客舱) 密封面如何设计及优化进行详细介绍,包括车门系统如何布置、密封面何时开始绘制、密封面的优化方法、密封面的一些lessons learn 等内容;

      2、侧门门洞(乘客舱)密封面设计
  
      2.1车门系统设计顺序介绍
  
  
侧门系统布置简图
  
侧门系统布置流程图
  
      2.2侧门门洞密封面设计介绍
      
      2.2.1 根据初版造型CAS 面, 以及项目策略来制定侧门系统开发策略。
      
      2.2.2 子系统零件结构开发策略
      
      前门、后侧门均采用整体冲压结构类型,考虑门的分装要求。
      
      前门、后侧门采用铰链结构(内旋),铰链借用某车型CNXXX; 为控制开发成本及进度,且考虑到分装工艺,所有紧固件、扶手支架、门铰链考虑全部借用;
      
      前门、后侧门窗框部分采用包边结构(除水切部位),类似于某车型GPXX ;考虑到玻璃升降的问题,焊接导槽分为2 段式; 且为保证其刚度,导槽的板厚定为0.8mm
2.2.3 玻璃面拟合设计( 包含外开手柄位置确认)
  
  
举例- 玻璃面拟合
  
  
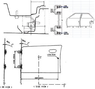
       2.2.4 侧门铰链布置设计:
  
  
举例- 铰链布置
  
  
      2.2.5 A 柱障碍角检查确认:
  
 
举例-A 柱障碍角边界及玻璃宽
  
      2.2.6 玻璃升降位置检查确认:
  
  
举例- 玻璃升降布置
  
      2.2.7 侧门门洞进出便利性检查确认:
  
  
  
举例-VI 门洞进出性
  
      2.2.8 侧围SHUT FACE 密封面输出:
  
  
举例- 侧围面SHUT FACE 输出
  
      2.3侧门门洞密封面调整在车型结构开发中的影响
  
  
举例- 门洞B&R line 调整影响的区域
  
       2.4侧门门洞密封面优化介绍
  
 
 
  
  
       3、 结束语
  
     门洞B&R line 是车型结构开发设计过程中的重要边界; 侧围SHUT FACE 面的输出包含了门洞B&R line ,包含了主密封和二道密封尺寸约束关系,体现了大部分门系统功能件布置所需的要求和周边关系; 该密封面需要项目开发前期组织各相关区域讨论确认,尽早完善功能结构和沟通达成一致,然后锁定发布边界更新数模; 虽然经过优化和讨论确认,但也永远没有最完美的密封面,只有满足项目开发时间、功能结构布置、感知等综合要求的输出物才是最优的.


钢筋笼滚笼机,是润科数控有限公司主营的产品之一。钢筋笼滚笼机可任意调节绕筋速度,钢筋笼自动成型,非常好用!

联系我们 | CONTACT US

山东润科数控科技有限公司

联系人:王经理 15610273168
地址:山东省潍坊市诸城市舜王九台社区261号
邮箱:961527466@qq.com
官网:www.runkecnc.com

王经理

15610273168